Hedeskov Center for Regenerative Practice
Restoration and transformation of historic school & regenerative agriculture to research centre
500 sqm / 180ha
2022 - 2025
Renovering og transformation af en tidligere landsbyskole fra 1910 i Djursland til et levende samlingssted for regenerativ praksis, forskning og formidling. Renoveringen tager udgangspunkt i stedets materialer, lokale håndværkstraditioner og bygherrens vision om at forene regenerativt landbrug og byggeri som en løsning på nutidens bæredygtighedsudfordringer.
Projektet bygger på en stedsbaseret tilgang, hvor bygningens historiske karakter og det omgivende landskab har formet designet. En landskabsaudit kortlagde lokale ressourcer som moræneler, dunhammerfibre og tømmer, der blev integreret i renoveringen. Moræneler anvendtes til gulve og vægge, mens bindingsværksteknikker og traditionelle håndværksmetoder blev genoplivet for at forbinde stedets historie med fremtidens regenerative byggeri.
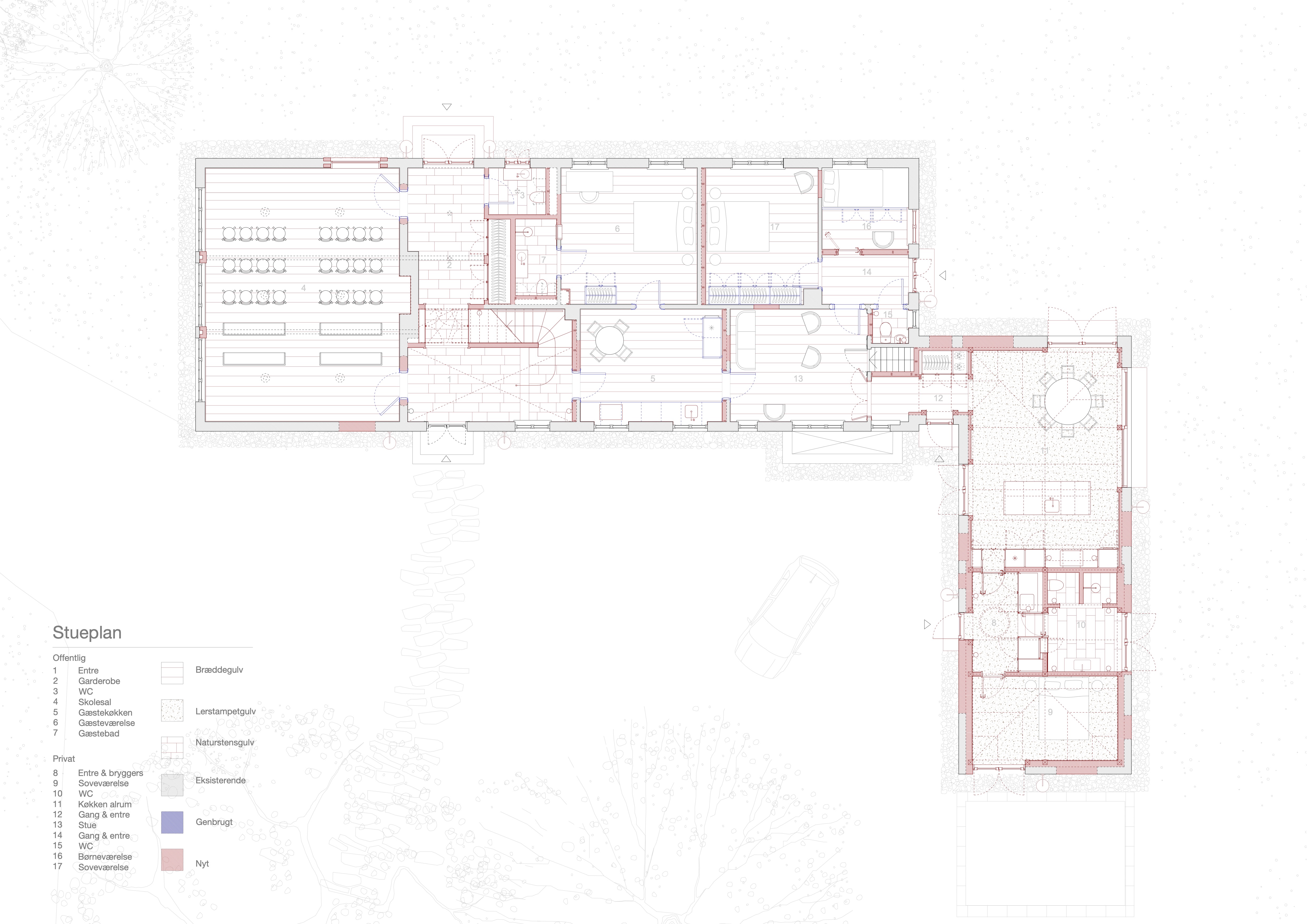
Den tidligere skole er nænsomt renoveret med fokus på bevaring og reparation frem for udskiftning, mens en tilhørende stald er omdannet med en ny trærammekonstruktion på kalkbetonfundament. Indvendige vægge og gulve er skabt af lokalt indvundet moræneler, hvilket ikke blot reducerer CO₂-aftrykket, men også understøtter naturgenopretning gennem etablering af levesteder og vandhuller.
De oprindelige trægulve er genbrugt til køkken og skabe, hvilket reducerer materialespild. Terrændækket er betonfrit, og renoveringen bygger primært på biobaserede og lokale materialer, herunder kalk, træfiberisolering, celleglas, lerplader, sandsten, hamp samt dansk dyrket træ.
Bygningen fungerer nu som et living lab, hvor der løbende indsamles data om materialernes hygroskopi og brugernes oplevelser. Dette bidrager til udviklingen af nye metoder inden for regenerativ renovering og transformation.
Projektet viser, hvordan nænsom renovering, stedsspecifikke materialer og glemte traditionelle byggeskikke kan danne grundlag for fremtidens renoveringer og transformationer. Det demonstrerer, hvordan renovering ikke blot kan bevare, men aktivt forbedre bygningens funktion, forlænge dens levetid og skabe synergi mellem historie, materialefornyelse og lokalsamfund – samtidig med at det bidrager positivt til miljøet.
Inspirerende Ressourcetiltag
Lokale materialer er kernen i Hedeskovs transformation og viser, hvordan byggeri kan understøtte både miljømæssig og social bæredygtighed. Local Works Studio har udført en landskabsaudit for at identificere egnede biomaterialer og udvikle løsninger baseret på områdets ressourcer.
Moræneler fra nærliggende skovområder er eksempelvis blevet brugt til gulve og vægge – et valg, der ikke blot reducerer CO₂-aftryk, men også skaber en direkte forbindelse mellem bygning og landskab. Udgravningen har samtidig givet plads til nye levesteder og små søer, hvilket illustrerer, hvordan materialehøst kan bidrage til naturgenopretning frem for ressourceforbrug.
Materialerne er blevet testet grundigt gennem prototyper og modellering, og principperne for høstning er forankret i genoprettende landskabspleje. Disse ressourcetiltag viser en ny vej for byggebranchen, hvor materialer ikke blot vælges ud fra tekniske egenskaber, men også deres evne til at regenerere landskaber og styrke lokale økosystemer
Eksempelværdi
Projektet har en høj eksempelværdi, da det i praksis viser, hvordan en bygning kan renoveres og transformeres og drives med fire forskellige anvendelsesformer. Stueetagen huser privatbolig, forsker/kunst lejlighed og den gamle skolestue er transformeret til et multifunktionelt formidlingsrum. 1 sal består af kontorplader samt mødelokale. Som et 1:1 eksempelbyggeri demonstrerer projektet ikke blot den tekniske gennemførlighed af biobaserede og lokale materialer, men også deres funktionalitet i daglig drift.
Projektet adresserer centrale udfordringer i renoveringsbranchen, såsom indvendig efterisolering uden fugttekniske problemer og plastfri terrænopbygning, og viser skalerbare løsninger, der kan implementeres i lignende bygningstyper. Ved at kombinere traditionelle håndværksmetoder med ny viden skaber projektet ikke blot arkitektonisk værdi, men også en model for regenerative renoveringsstrategier, der kan inspirere og gentages i andre bioregioner.
Samarbejde
Samarbejdet har været solidt, idet processen fra start har involveret lokale håndværkere, materialeforskere og landbrugseksperter. Det tværfaglige samarbejde har sikret bæredygtige og teknisk robuste løsninger, understøttet af kontinuerlig udvikling af prototyper og materialetest. Samtidig er principper for landskabspleje integreret i både materialehøst og genanvendelse, hvilket yderligere styrker projektets helhedsorienterede tilgang
Hedeskov Centre for Regenerative Practice: A New Model for Bioregional Architecture
Djernes & Bell has completed the Hedeskov Centre for Regenerative Practice, a pioneering project that redefines how architecture can work regeneratively with the landscape’s own resources. The centre serves as a laboratory for sustainable building techniques, where material locality, reuse, and the maximum preservation of existing structures are guiding principles.
‘We need a new material culture, one that rejects the hidden systems of unnecessary production and obscene waste, a culture where traces of use, decay and repair are celebrated and the act of making good becomes the pivotal role between humans and their resources, where consumption is exchanged for symbiosis.’
Justine Bell, Djernes & Bell
Materials from the Landscape: A Regenerative Strategy
Hedeskov is rooted in the natural materials and resources of its surroundings. Instead of relying on imported building materials, in collaboration with the British Local Works Studio, mapped and utilized what the site itself offers: clay from nearby soils has been integrated into the constructions, while bullrush fibers from the surrounding wetlands are used for insulation. This approach significantly reduces the project’s carbon footprint and anchors the architecture in the landscape it inhabits.
Maximum Preservation and Reuse of Existing Structures
A key aspect of the project's sustainability strategy is the preservation and reinforcement of existing buildings rather than their replacement. Through careful restoration and transformation, the original timber structures and masonry have been integrated into the new centre, while materials from nearby decommissioned buildings have been repurposed. This strategy not only lowers environmental impact but also ensures that the building’s historical layers remain visible and active.
Bioregionalism as an Architectural Strategy
The project embodies Djernes & Bell’s holistic approach to bioregional architecture, where buildings become part of the local ecosystem rather than separate entities. By working with the landscape’s materials and responding to its climatic, geological, and cultural conditions, the architecture not only respects its context but actively regenerates it.
A Hub for Regenerative Practice
The Hedeskov Centre for Regenerative Practice is more than just a building—it is an experimental space for regenerative strategies, where architects, artists, and researchers can explore how materials and building techniques contribute to a post-carbon future. The centre hosts workshops, research initiatives, and knowledge-sharing on regenerative architecture and landscape stewardship.
‘One of our principles at Hedeskov is ‘Diversity rules’
From furniture makers and biologists, material scientists and algae researchers, longevity nerds and building engineers - all possible perspectives on regeneration are welcome at Hedeskov.’
Sofie Aagard
Photos: Johan Dehlin & Hampus Berndtson
Illustrations & Process: Djernes & Bell





























































